Сохранен 17
https://2ch.su/dom/res/66494.html
К сожалению, значительная часть сохранённых до 2024 г. изображений и видео была потеряна (подробности случившегося). Мы призываем всех неравнодушных помочь нам с восстановлением утраченного контента!
Аноним 31/10/15 Суб 08:46:43 #1 №66494 
14462704038850.jpg
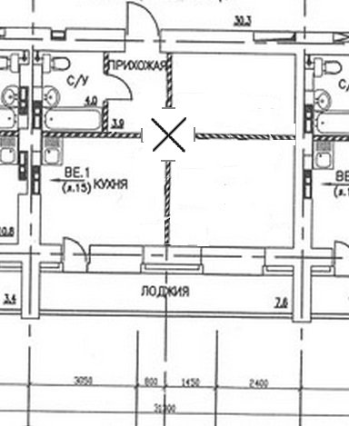
Есть одна квартира, в только что отстроенном доме. Подскажи, умный анон, где в каком дверном проеме запилить стену, или перенести, или сделать двушку с маленькими комнатами, или перекинуть кухню (хуй с ними со СНИПами)
Аноним 31/10/15 Суб 09:46:36 #2 №66495 
>>66494 (OP)

Кухню в санузел, комнату в кухню, санузел в комнату.В лоджии выложи стену вместо парапета в полтора кирпича. Всё общей гипсокартоном, сделай тёплые полы. В одной из лоджий сауну. Ванну сделай бассейном, пол бассейна по уровню пола, канавку для водослива проштроби в полу. И все стены по периметру проштроби на 10см вглубь, что бы там элетрику тащить. Батареи замуруй в стены, так лучше будет.
Аноним 31/10/15 Суб 10:13:18 #3 №66496 
14462755987110.jpg
>>66494 (OP)
Это же настолько очевидно.
Аноним 31/10/15 Суб 10:13:28 #4 №66497 
>>66495
>так лучше будет.
Ты сделал мой день.
Аноним 02/11/15 Пнд 13:53:15 #5 №66594 
14464615957120.jpg
>>66496
Хуйню не советуй, а.
Аноним 02/11/15 Пнд 15:07:34 #6 №66595 
>>66594
сабатон.mp3
Аноним 02/11/15 Пнд 15:11:46 #7 №66596 
>>66594
Межкомнатного окна нет.
Аноним 02/11/15 Пнд 18:34:21 #8 №66600 
14464784616230.jpg
>>66594
Палю годноту.
Аноним 03/11/15 Втр 15:25:09 #9 №66640 
>>66600
Ты ебанутый
Аноним 03/11/15 Втр 23:00:42 #10 №66671 
>>66640
А оп не ебанутый? Всё как раз отлично сочетается.
Аноним 04/11/15 Срд 00:19:54 #11 №66674 
14465855942650.jpg
>>66600
Даблолюцифер, зачем?..
Аноним 04/11/15 Срд 19:22:58 #12 №66738 
>>66494 (OP)
Кухню к стене в комнату перекинуть: воду под порогом в коридоре протащить из сан узла. Провод для плитки тоже как то протащи с кухни.
Стену между бывшей кухней можно заделать гипсой.
Новую большую кухню можно разделить барной стойкой. Площадь квартиры можно увеличить за счет лоджии.
Аноним 04/11/15 Срд 20:15:00 #13 №66741 
Я бы поделил лоджию. Стену между кужней и лоджией превратил в барную стойку. Увеличил за счёт этого площадь кухни. Комнату удобно оставить так. Сделал бы встроенный шкаф в прихожей за счёт кусочка комнаты.
Аноним 05/11/15 Чтв 09:26:45 #14 №66753 
14467048051380.jpg
>>66600
Шаришь. Уважаю.
Аноним 30/11/15 Пнд 16:57:47 #15 №68180 
>>66753
>>66600
>>66594
Пидоры ёбанные. Пацан нормально попросил совёт, а вы? Двачеры сраные, уёбки.
sageАноним 30/11/15 Пнд 19:45:30 #16 №68189 
>>68180
>Пацан нормально попросил
Пацан дебил.
Тут нет универсального хорошего решения.
Кому то будет удобней так, кому то этак.
Если какой то анон вникнет в твою проблему и распишет детально "как лучше", то … тебе это никак не поможет, ибо что хорошо анону, хуёво тебе и наоборот.
Аноним 26/04/16 Втр 20:58:34 #17 №80697 
>>66494 (OP)
Во втором
comments powered by Disqus